Au coeur des pins

Type : Maison individuelle

Année : 2018

Lieu : ANDERNOS LES BAINS

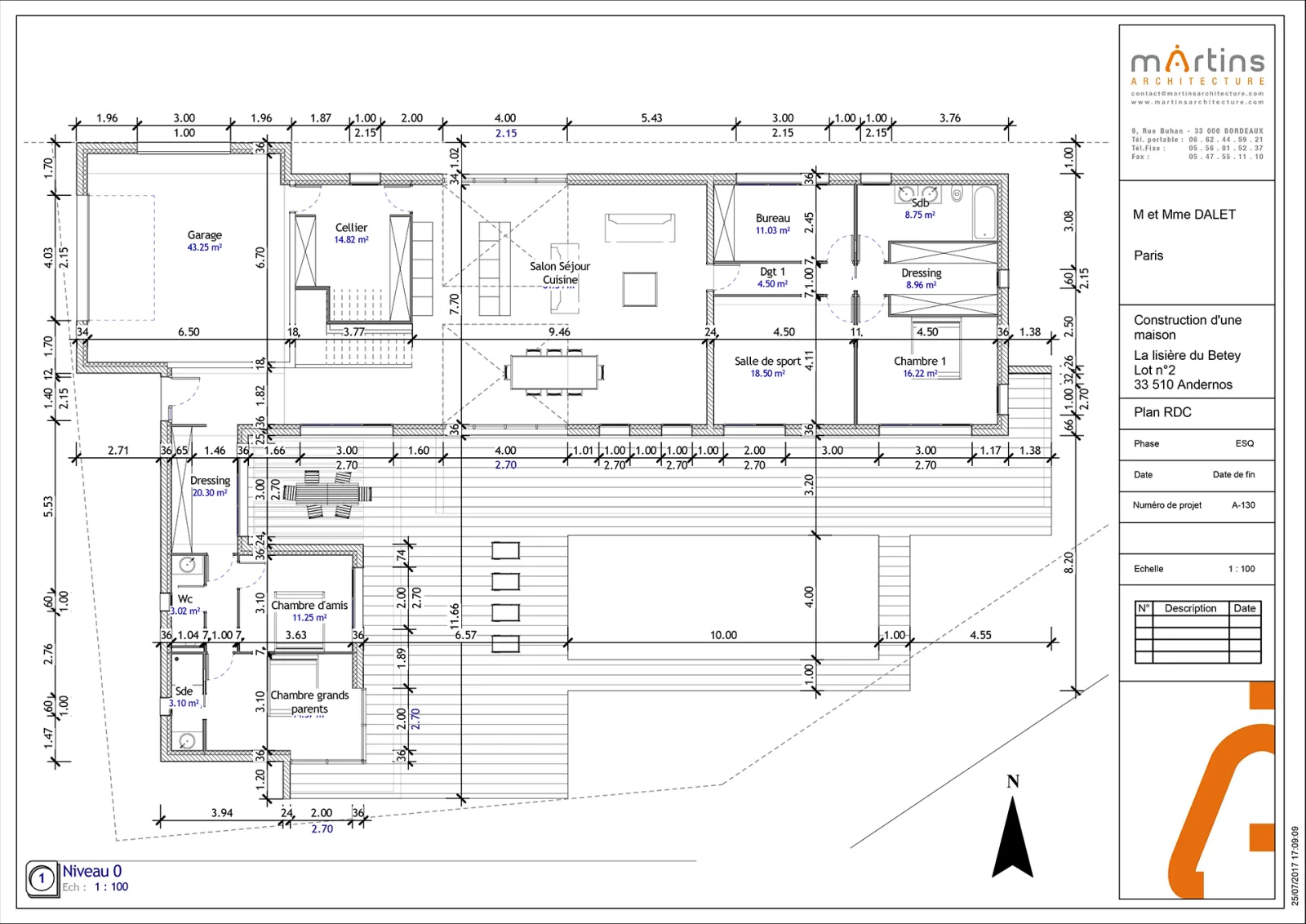
Projet d'une maison individuellle située au milieu des pins sur le bassin d'Arcachon.

Ce projet est tourné sur une grande terrasse avec piscine autour de laquelle s'articule toute la maison. Toutes les pièces pricnicpales sont tournées vers cet espace.

Un traitement original pour cette maison avec ces auvents qui viennent marquer des biais, des directions et donnent du dynamisme à cette composition d'ensemble.